Offers over £450,000

4 bed link detached house for sale in Watery Lane, Brackley, NN13

Shortlist

Key features

  • Extended four/five bedroom link-detached family home
  • Quiet cul-de-sac location close to Brackley town centre
  • Large open plan kitchen/diner forming the heart of the home
  • Cosy living room with central fireplace
  • Two additional reception rooms offering excellent flexibility
  • Additional ground floor bedroom ideal for guests or multi-generational living
  • Four first floor bedrooms with en-suite to master and family bathroom
  • Versatile loft room ideal for home working or single bedroom
  • Enclosed rear garden with patio, lawn and summer house
  • Council Tax Band: D | EPC Rating: Awaited

Virtual Tour

Extended Four/Five Bedroom Link-Detached Family Home in a Cul-de-Sac Location | Watery Lane, Brackley

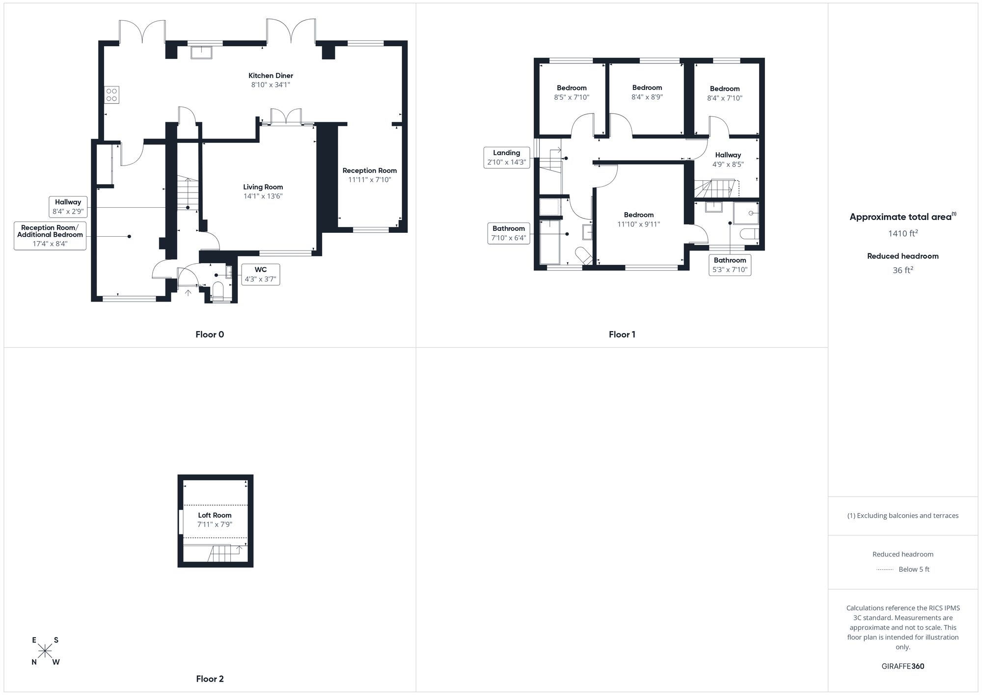
Tucked away within a quiet cul-de-sac and just a short distance from Brackley town centre, this extended four/five bedroom link-detached home offers generous and adaptable living space, perfectly suited to modern family life.

The ground floor is designed with both everyday living and entertaining in mind, centred around a large open plan kitchen/diner that forms the true heart of the home - a sociable and welcoming space for everything from busy mornings to relaxed evenings with family and friends. The main living room provides a cosy retreat, complete with a central fireplace, ideal for unwinding at the end of the day.

In addition, there are two further reception rooms, offering fantastic flexibility depending on your needs. One is currently used as a fifth bedroom on the ground floor, ideal for guests or multi-generational living, while the other lends itself perfectly to a home office, snug or playroom. A convenient downstairs W.C. completes the ground floor.

Upstairs, the first floor offers four well-proportioned bedrooms, including a generous principal bedroom with its own en-suite bathroom, alongside a family bathroom serving the remaining rooms.

The second floor has been converted to create a versatile loft room, filled with natural light and ideal as a dedicated work-from-home space, creative studio or additional single bedroom, offering even more flexibility as your needs evolve.

Outside, the enclosed rear garden has been thoughtfully arranged to offer both relaxation and practicality, with a spacious patio area for outdoor dining, steps leading down to a lawned area and a summer house - perfect for enjoying the warmer months. To the front, the property benefits from driveway parking for multiple vehicles.

Open day - Saturday 4th April by appointment only.


Stamp duty due

Based on a sale price of £450,000 the total amount of stamp duty payable will be:

*

Last updated: The calculator has been updated to reflect changes in stamp duty following the Autumn Budget on 30th October 2024 for April 1st 2025 onwards.

* This value is based on the standard rate and not applicable to first-time buyers or buy-to-let / second home buyers.

Further details

  • New listing: launched in the last 10 days
  • Status: Available
  • Size: 1506.95 sq ft (140 sq m)
  • Overall plot size: 3713.55 sq ft
  • Council tax band: D
  • Tenure: Freehold
  • Parking spaces: Driveway
  • Outside spaces: Private Garden
  • Reference: 707800

What else you need to know?

Utility supply, rights and restrictions

  • Utility supply
    • Electricity supply: National grid
    • Heating supply: Gas central
    • Sewerage: Standard
    • Water supply: Direct main waters
  • Other information
    • Construction materials: Brick and block
    • Is loft boarded: Partially
    • Roof material: Concrete tiles

Location