Guide Price £340,000

3 bed semi-detached house for sale in Juno Crescent, Brackley, NN13

Shortlist

Key features

  • Three bedroom semi-detached home
  • Turnkey condition
  • Located on the popular Juno Crescent in Brackley
  • Driveway parking
  • Cosy and well-proportioned living room
  • Modern kitchen with integrated appliances
  • Kitchen diner with French doors to the rear garden
  • Convenient downstairs W.C.
  • Master bedroom with en-suite shower room
  • EPC Rating: B | Council Tax Band: C

Virtual Tour

Stylish Three Bedroom Semi-Detached Home with Driveway Parking | Juno Crescent, Brackley

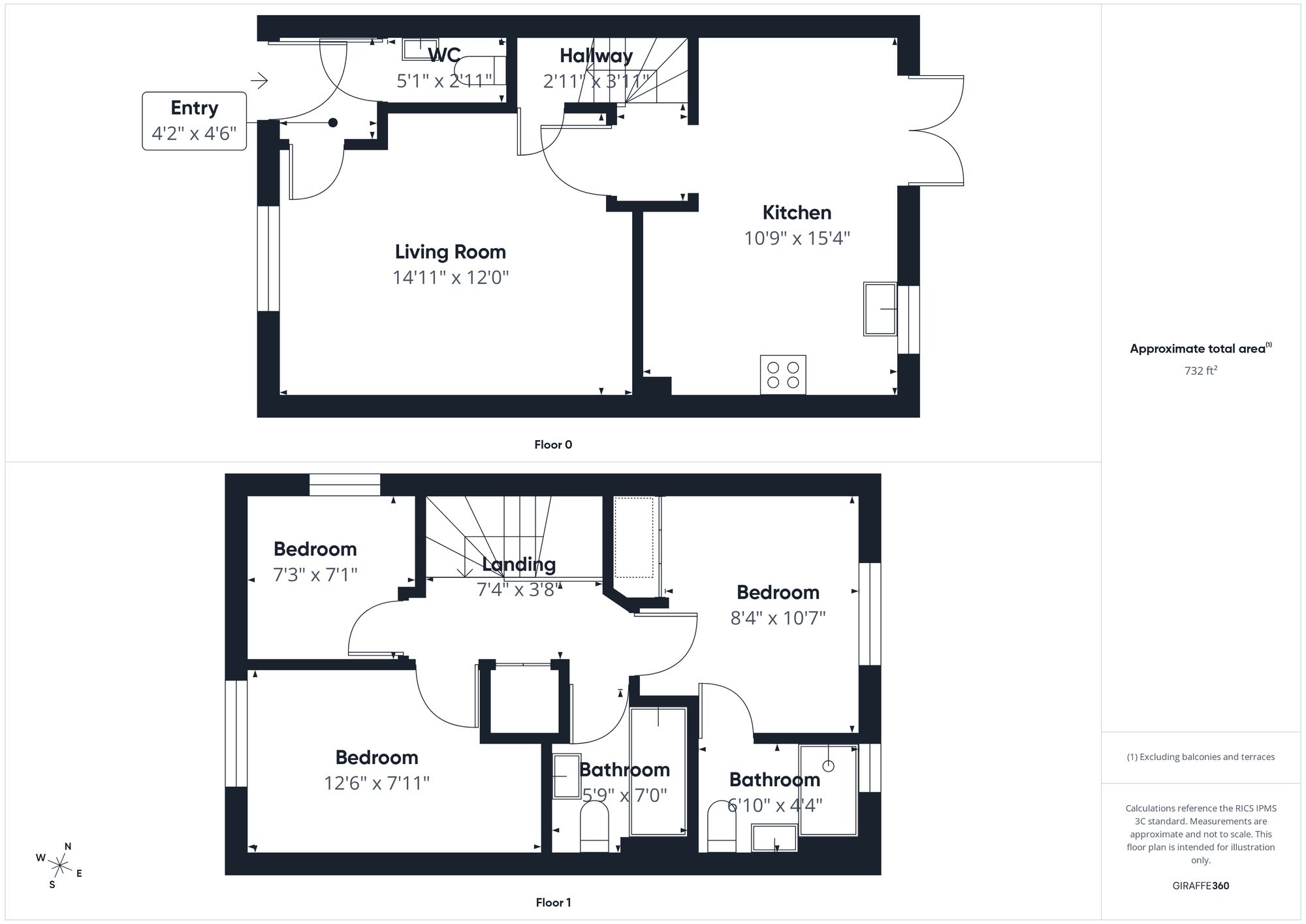
Located on the sought-after Juno Crescent in Brackley, this well-maintained three bedroom semi-detached home offers comfortable and modern living, perfectly suited to first-time buyers, young families, or those looking to downsize.

The ground floor welcomes you into a cosy yet generously sized living room, offering ample space for a full range of living furniture and creating a warm and inviting atmosphere. To the rear of the property sits a contemporary kitchen diner, fitted with wall and base units, integrated appliances, an oven, hob, and splashback. The dining area enjoys excellent natural light and benefits from French doors opening directly onto the rear garden, making it an ideal space for both everyday living and entertaining. A convenient downstairs W.C. completes the ground floor accommodation.

The first floor is home to three well-proportioned bedrooms, including a master bedroom with its own en-suite shower room. The remaining bedrooms are served by a modern family bathroom, finished to a fantastic standard.

Outside, the property offers driveway parking to the front and a private rear garden featuring a lawn, patio areas ideal for outdoor seating, and a useful garden shed. The home is well positioned for local amenities, schools, and transport links, making it a practical and appealing choice in a popular residential location.


Stamp duty due

Based on a sale price of £340,000 the total amount of stamp duty payable will be:

*

Last updated: The calculator has been updated to reflect changes in stamp duty following the Autumn Budget on 30th October 2024 for April 1st 2025 onwards.

* This value is based on the standard rate and not applicable to first-time buyers or buy-to-let / second home buyers.

Further details

  • New listing: launched in the last 10 days
  • Status: Available
  • Size: 839.58 sq ft (78 sq m)
  • Overall plot size: 1872.92 sq ft
  • Council tax band: C
  • Tenure: Freehold
  • Parking spaces: Driveway
  • Outside spaces: Private Garden
  • Reference: 690995

Location