Sold STC
Guide Price £345,000

3 bed semi-detached house for sale in Clement Bois, Brackley, NN13 (ref: b0315ded-e663-4b80-a375-f3665c8fa183)

Shortlist

Key features

  • Three bedroom semi-detached family home
  • Entrance hall with wooden flooring and stairs to first floor
  • Spacious main living room with electric fireplace
  • Kitchen diner with French doors to the rear garden
  • Range of wall and base units, oven, hob and extractor fan
  • Second reception room ideal as snug, office or playroom
  • Modern downstairs shower room with heated towel rail
  • Family bathroom with shower over bath and separate W.C.
  • Private rear garden with patio, lawn, and mature plants and trees
  • EPC Rating: D | Council Tax Band: B

Virtual Tour

Three Bedroom Semi-Detached Family Home with Two Reception Rooms and Garage | Clement Bois, Brackley

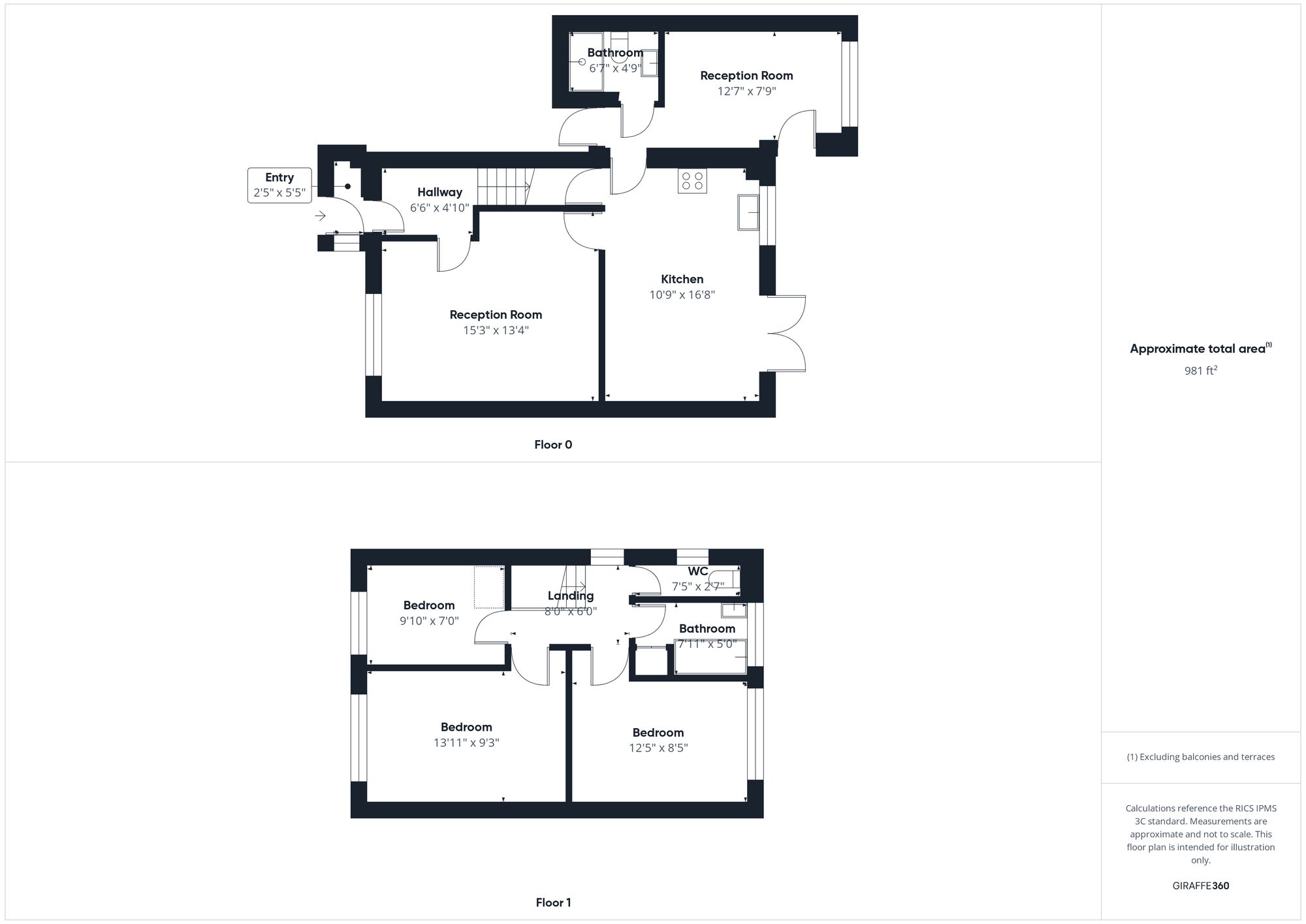
This well-maintained three bedroom semi-detached home is ideally located on Clement Bois, a desirable residential area in Brackley. Offering generous living space, flexible room layouts and a private, established garden, it’s perfectly suited to families or buyers seeking a comfortable and versatile home.

The entrance hall welcomes you with wooden flooring and stairs leading to the first floor. The main living room is bright and inviting, featuring a central electric fireplace, carpeted flooring, and ample space for furnishings.

The kitchen diner sits at the rear of the home, enjoying views over the garden through French doors. It offers a range of wall and base units providing excellent storage, tiled flooring and splashbacks, an extractor fan, hob and oven, plus space for appliances and dining furniture — ideal for family meals or entertaining.

A second reception room provides great flexibility, making the perfect snug, dining room, home office or playroom. Completing the ground floor is a stylish, modern shower room with wall tiling, a shower, W.C., sink and heated towel rail.

The first floor is home to three spacious bedrooms and the family bathroom, which includes a sink, shower over bath, and a separate W.C.

The rear garden enjoys both patio and lawn areas, in addition to mature plants and trees that create a lovely sense of privacy and greenery — perfect for outdoor dining and relaxation. To the front, there’s a lawned garden, driveway parking for two vehicles, and a single garage providing additional parking or storage.

Driveway
Driveway and single garage.

What this property offers

  • Garage
  • Garden
  • Parking and/or Driveway

Stamp duty due

Based on a sale price of £345,000 the total amount of stamp duty payable will be:

*

Last updated: The calculator has been updated to reflect changes in stamp duty following the Autumn Budget on 30th October 2024 for April 1st 2025 onwards.

* This value is based on the standard rate and not applicable to first-time buyers or buy-to-let / second home buyers.

31 Property images

3 bed semi-detached house for sale in Clement Bois, Brackley, NN13 0
3 bed semi-detached house for sale in Clement Bois, Brackley, NN13 1
3 bed semi-detached house for sale in Clement Bois, Brackley, NN13 2
3 bed semi-detached house for sale in Clement Bois, Brackley, NN13 3
3 bed semi-detached house for sale in Clement Bois, Brackley, NN13 4
3 bed semi-detached house for sale in Clement Bois, Brackley, NN13 5
3 bed semi-detached house for sale in Clement Bois, Brackley, NN13 6
3 bed semi-detached house for sale in Clement Bois, Brackley, NN13 7
3 bed semi-detached house for sale in Clement Bois, Brackley, NN13 8
3 bed semi-detached house for sale in Clement Bois, Brackley, NN13 9
3 bed semi-detached house for sale in Clement Bois, Brackley, NN13 10
3 bed semi-detached house for sale in Clement Bois, Brackley, NN13 11
3 bed semi-detached house for sale in Clement Bois, Brackley, NN13 12
3 bed semi-detached house for sale in Clement Bois, Brackley, NN13 13
3 bed semi-detached house for sale in Clement Bois, Brackley, NN13 14
3 bed semi-detached house for sale in Clement Bois, Brackley, NN13 15
3 bed semi-detached house for sale in Clement Bois, Brackley, NN13 16
3 bed semi-detached house for sale in Clement Bois, Brackley, NN13 17
3 bed semi-detached house for sale in Clement Bois, Brackley, NN13 18
3 bed semi-detached house for sale in Clement Bois, Brackley, NN13 19
3 bed semi-detached house for sale in Clement Bois, Brackley, NN13 20
3 bed semi-detached house for sale in Clement Bois, Brackley, NN13 21
3 bed semi-detached house for sale in Clement Bois, Brackley, NN13 22
3 bed semi-detached house for sale in Clement Bois, Brackley, NN13 23
3 bed semi-detached house for sale in Clement Bois, Brackley, NN13 24
3 bed semi-detached house for sale in Clement Bois, Brackley, NN13 25
3 bed semi-detached house for sale in Clement Bois, Brackley, NN13 26
3 bed semi-detached house for sale in Clement Bois, Brackley, NN13 27
3 bed semi-detached house for sale in Clement Bois, Brackley, NN13 28
3 bed semi-detached house for sale in Clement Bois, Brackley, NN13 29
3 bed semi-detached house for sale in Clement Bois, Brackley, NN13 30

Further details

  • Status: Sold STC
  • Size: 925.70 sq ft (86 sq m)
  • Overall plot size: 2378.83 sq ft
  • Council tax band: B
  • Tenure: Freehold
  • Parking spaces: Driveway
  • Outside spaces: Private Garden
  • Tags: Garage, Garden, Parking and/or Driveway
  • Reference: b0315ded-e663-4b80-a375-f3665c8fa183

Location

Similar priced properties

3 bed semi-detached house for sale in Faugere Close, Brackley, NN13
Sold STC
Video available
Offers over £330,000
3 bed semi-detached house for sale in Faugere Close, Brackley, NN13
3 1 3

Spacious Three-Bedroom Semi-Detached Home in Popular Faugere Close, Brackley Tucked away in the sought-after Faugere Close, this very well presented three-bedroom semi-detached...

3 bed semi-detached house for sale in Faugere Close, Brackley, NN13 Offers over £330,000
3 1 3

Spacious Three-Bedroom Semi-Detached Home in Popular Faugere Close, Brackley Tucked away in the sought-after Faugere Close, this very well presented three-bedroom semi-detached home offers generous, well-planned living space with stylish finishes...

3 bed semi-detached house for sale in Poppyfields Way, Brackley, NN13
Sold STC
Video available
Offers over £340,000
3 bed semi-detached house for sale in Poppyfields Way, Brackley, NN13
3 2 1

Modern Three-Bedroom Home with Garage & Garden – Poppyfields Way, Brackley Located on the sought-after Poppyfields Way, this beautifully maintained three-bedroom semi-detached...

3 bed semi-detached house for sale in Poppyfields Way, Brackley, NN13 Offers over £340,000
3 2 1

Modern Three-Bedroom Home with Garage & Garden – Poppyfields Way, Brackley Located on the sought-after Poppyfields Way, this beautifully maintained three-bedroom semi-detached home offers bright, modern living and is ready for its next owners. The...

3 bed end of terrace house for sale in Mill Lane, Croughton, NN13
Video available
Guide Price £349,000
3 bed end of terrace house for sale in Mill Lane, Croughton, NN13
3 1 1

Charming Stone-Built Village Home with Excellent Potential Situated in the heart of the charming village of Croughton, this delightful stone-built three-bedroom end-of-terrace home...

3 bed end of terrace house for sale in Mill Lane, Croughton, NN13 Guide Price £349,000
3 1 1

Charming Stone-Built Village Home with Excellent Potential Situated in the heart of the charming village of Croughton, this delightful stone-built three-bedroom end-of-terrace home offers a wonderful blend of original character and opportunity....