£134,000

3 bed end of terrace house for sale in Foxhills Way, Brackley, NN13

Shortlist

Key features

  • Three-bedroom semi-detached home
  • Available on a shared ownership basis (40% share)
  • Well-presented throughout and move-in ready
  • Modern and stylish kitchen with ample storage
  • Spacious living room with access to rear garden
  • Private rear garden with access to parking
  • Two allocated parking spaces
  • Downstairs W.C.
  • Two double bedrooms plus a generous single bedroom
  • Council Tax Band: C | EPC Rating: B

Virtual Tour

Shared Ownership | Foxhills Way, Brackley

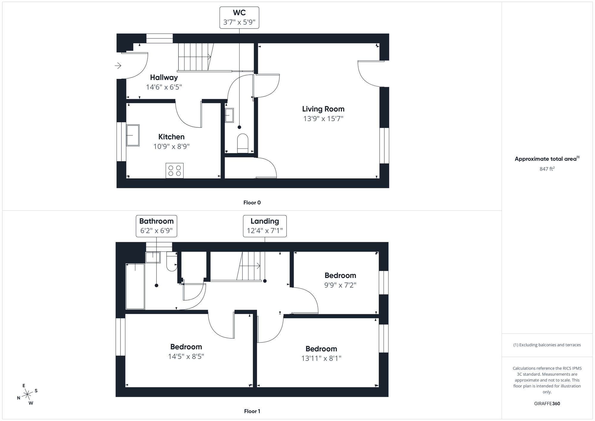
Situated on the popular Foxhills Way in Brackley, this well-presented three-bedroom semi-detached home is offered on a shared ownership basis, providing an excellent opportunity for first-time buyers and those looking to step onto the property ladder.

The property is thoughtfully laid out and benefits from a modern and stylish kitchen, offering ample storage and workspace, ideal for everyday living. To the rear of the property, a spacious living area provides a bright and comfortable setting for both relaxing and entertaining, with direct access to the private rear garden. The garden itself is a great size and further benefits from convenient access to the two allocated parking spaces, adding to the practicality of the home. A downstairs W.C. completes the ground floor accommodation.

Upstairs, the property comprises two generously sized double bedrooms and a well-proportioned single bedroom, making it perfect for families, home working, or guest space. The family bathroom is modern and well-appointed, serving all three bedrooms.

Additional benefits include an EPC rating of B, ensuring energy efficiency, and Council Tax Band C. The property is ideally located within easy reach of local amenities, schools, and transport links, making it a fantastic choice for a range of buyers.

Early viewing is highly recommended to fully appreciate all that this lovely home has to offer.

Shared Ownership Information

The property is available on a shared ownership basis, with a 40% share priced at £134,000. A monthly rent of £574.43 is payable to Bromford Housing, which includes the service charge.

Shared Ownership InformationThe property is available on a shared ownership basis, with a 40% share priced at £134,000. A monthly rent of £574.43 is payable to Bromford Housing, which includes the service charge.


Stamp duty due

Based on a sale price of £134,000 the total amount of stamp duty payable will be:

*

Last updated: The calculator has been updated to reflect changes in stamp duty following the Autumn Budget on 30th October 2024 for April 1st 2025 onwards.

* This value is based on the standard rate and not applicable to first-time buyers or buy-to-let / second home buyers.

Further details

  • New listing: launched in the last 10 days
  • Status: Available
  • Size: 925.70 sq ft (86 sq m)
  • Overall plot size: 1722.23 sq ft
  • Council tax band: C
  • Tenure: Leasehold
  • Parking spaces: Allocated
  • Outside spaces: Private Garden
  • Reference: 708995

Location