2 bedrooms
1 bathroom
1 reception
2 bedrooms
1 bathroom
1 reception
Charming Stone-Built Two-Bedroom Semi-Detached Home with Loft Conversion in Brackley
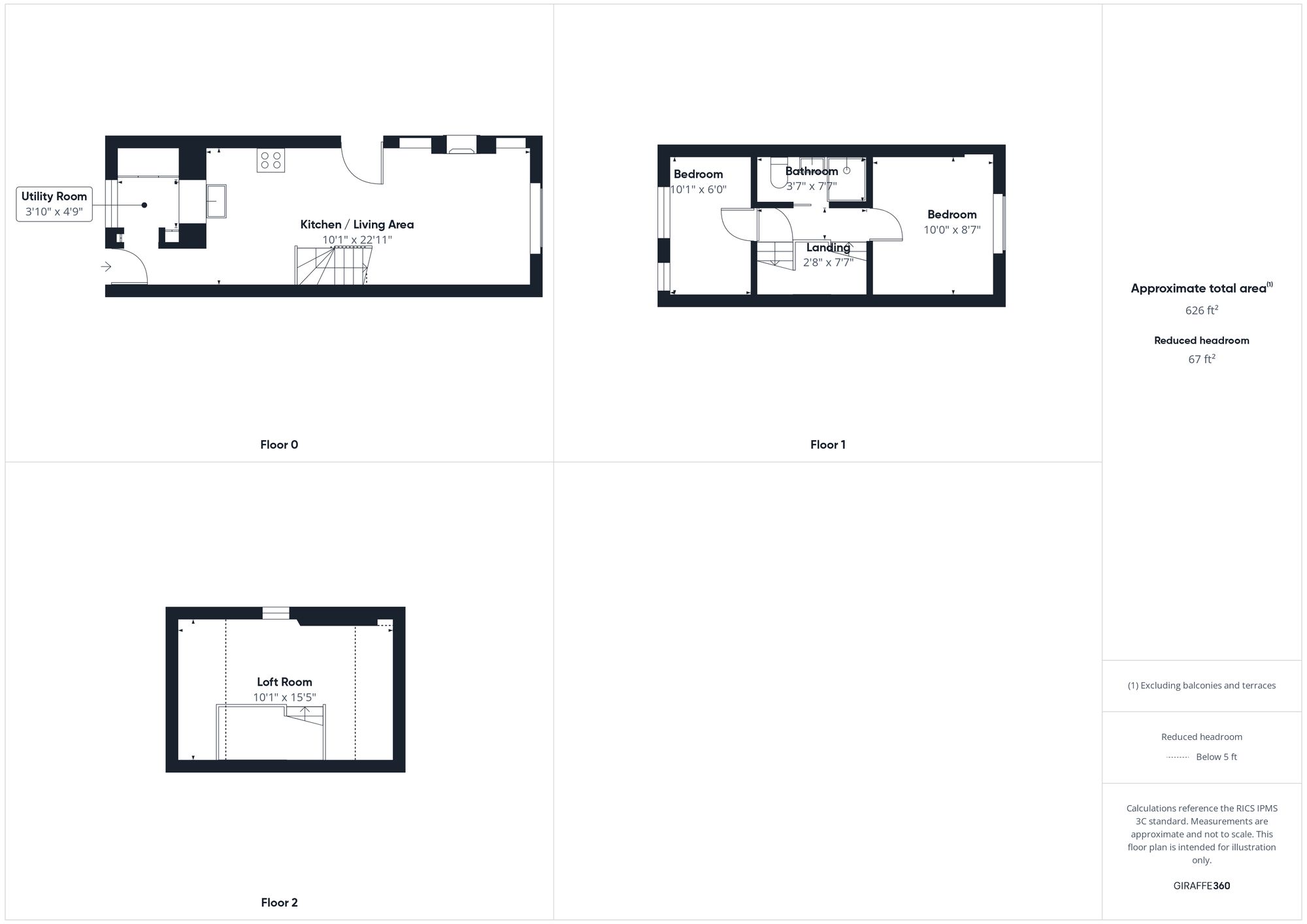
This charming stone-built two-bedroom semi-detached home on Manor Road offers a perfect blend of traditional construction and modern living, situated just a short walk from the town centre and local amenities. Spread across three floors, the property provides flexible and well-proportioned accommodation, including a thoughtfully converted loft room that can serve as a home office, guest room, or hobby space.
On the ground floor, you’ll find a modern kitchen featuring white wall and base units, wood worktops, integrated appliances, stylish tiled splashbacks, and attractive wood flooring. The kitchen flows seamlessly into the main reception room, which is bathed in natural light and centred around a welcoming fireplace, creating an inviting space ideal for relaxing or entertaining. Adjacent to the kitchen is a convenient utility area, offering practical space for laundry and additional storage.
Upstairs, the first floor houses two generously sized bedrooms and a contemporary family bathroom. The bathroom is finished with modern tiling and includes a shower fitted over the bath, a W.C., and a washbasin, combining style and functionality.
Outside, the property benefits from an enclosed rear patio garden, perfect for alfresco dining or unwinding in privacy, alongside a useful garden shed providing extra storage space.
This delightful home offers an excellent opportunity for first-time buyers, professionals, or small families seeking a comfortable and stylish residence in a convenient location.



























